基本情况简介
位置及周边概括性描述:顺德豸浦均安自建6层别墅,负一层为影音室
投入资金:总计45万元,影院10万元、K歌室5万元、声学装修30万元
空间信息:长11.8m×宽6.9m×高2.2m,面积81㎡

用户使用需求:业主是年轻有为的80后,新家建设规划中,经与家人商量,决定将负一层改建成影K室。由于空间面积够大,希望一边做影院,一边做卡拉OK房,家人可以互不干扰,独立使用。
器材列表
影院系统
主音箱:OSD Audio T82×2
中置音箱:OSD Audio T82
环绕音箱:OSD Audio T61×2
天花全景声音箱:OSD Audio R51×4
低音炮 :SVS PC2000
AV功放:Marantz(马兰士) SR6013
投影机:Sharp(夏普) XG-H360ZA
投影幕:浦雷森Plasen 130寸透声幕
影院构建过程,声学/光学处理、智能应用及特别设计

从空间设计开始,原始建筑只有2.2m层高,大大限制了空间的利用,也增加了整体设计的难度。与业主沟通了解使用需求后,制定了独一无二的定制型影K一体室。设计后,整个空间“灵活”起来,实现功能分区,视觉上巧妙运用镜面反射,使进入空间的人感觉不到2.2m层高带来的压抑感。


基于设计师的设计灵感,采用视觉鲜明、不规则内嵌式墙体,一定程度上增加了空间层次感,同时又可收纳物品,刚好迎合了业主的个人喜好,将其收藏的名酒摆放于此。除了装饰之外,它也兼具实用性,在绚烂的五彩灯带映衬下,空间变得神秘又高雅,置身于此观影或唱K,空间灵动带动节奏气氛,让体验者拥有更惬意的享受。

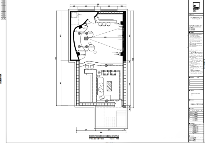
声学及设备布置
在确定了整体装修风格后,接下来就是确认设备的摆放位置。所有声学材料及设备的置放,均按照专业认证THX、ISF标准执行。


一边为影音室和K歌房,另外一边则做休闲饮吧
设计与调试者心得
打造完不规则墙体后根据色彩搭配设计墙体灯带,四面墙体分别填入声学材料,做吸音隔音处理。天花板除了做声学设计,还加入星空顶。重工打造影K一体室,当属经典高端案例的典范。

主音箱OSD T82是嵌墙式音箱,对于热爱音乐,又不想让音箱破坏设计风格的发烧友业主来说,好声音和简洁的室内设计让他难以取舍。刚好有OSD声音解决方案,让他可以鱼与熊掌轻松兼得,所以他选择了该品牌。吸顶音箱R51将声音和建筑设计完美融合,音箱再不那么突兀,声音变成一种设计元素,就像光线、形状和色彩,而声学上的精确性却没有丝毫损失。

很多人存在一个误区,在组建家庭影院的过程里,他们觉得反正都是音箱,什么样的箱子都能唱,因此往往在选购产品时选择了家庭影院领域的音箱和功放。其实,利用家庭影院音箱和功放来唱歌也并非不可,但却非常容易让音箱受损。因此,同一空间使用两套系统才是明智的抉择。
卡拉OK功放可以调节中高低音以及混响和延迟的效果,可以通过调节选项来帮助我们,唱出清唱达不到的效果。卡拉OK音箱的好坏除了体现声音的高中低音表现之外,主要还体现在声音的承载度上,卡拉OK音箱的振膜可以承受高音所带来的冲击而不会损坏。

在私人影院中,为业主配置一套称心的影音设备,既要能体验到K歌给生活带来的乐趣,又能防止影音设备的损坏。
设计心得

唱歌和观影是两种不同的体验,对空间环境和技术、设备有严格的区分。
首先,房间格局很难协调,一般来说传统KTV房间都是包围式的、横向的,也比较短,往往是3米的距离。而私人家庭影院要求是竖向的,观影的距离要求4-5米。唱歌用的是电视机,而看电影用的是投影机,音箱、操控等器材也是不同的。而且KTV的房间一般会去到120dB-130dB,很难完全隔音,这对于旁边的房间会有影响。

设计团队的做法是把KTV和私人家庭影院区分来做。一部分房间K歌,另一部分房间观影。房间之间是通用的,各使用不同的系统和器材。
整体风格与效果


该影K一体室整体风格高雅,除了极具绚烂感,还集合了颜值与实力。另一方面,大面积空间能够同时容纳几十人K歌、观影。