免费注册
查看:3276 回复:0
发条木耳朵

OSD Audio打造简约、淡雅的7.1全景声影院

[复制链接]
楼主

基本信息简介

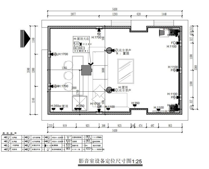
案例类别:定制影院方位及周边概括性的描述:项目地处佛山大沥广佛新世界凯景湾高级别墅住宅区资金投入:14万元空间信息:长5.43m×宽3.58m,面积19.4㎡

用户运用需求:业主是一位老练稳重的60后,要求是既能歌唱又能看电影,要用国际大品牌,最好有一些简易的灯带作装修,但不要花里胡哨。

器材列表

OSD Audio入墙式7.1全景声影院配置

主音箱:OSD Audio T82×1对中置音箱:OSD Audio T82×1环绕音箱:OSD Audio T61×4低音炮:DANNO B-120PAV功放:DENON(天龙)X2400H投影机:EPSON(爱普生)TZ2100投影幕:SWEIN 120英寸画框幕

影院过程,声学/光学处理、智能应用及特别设计

此别墅项目从空间整体规划、摆位,到墙体灯带、沙发色彩建议,都由规划团队亲自构建,影音室的简约风格和影音设备都令业主高度满意。影音室选用OSD Audio嵌墙式音箱,均依照3D沉溺音效Dolby Atmos,IMAX、DTS-X高标准专业化设计。OSD Audio卓越的7.1环绕声系统,令整体音响效果愈加逼真。


针对空间特色,设计师选用OSD Audio音箱。它可呈现明晰干净的对白以及赋有震撼感的低频,声响表现干净利落,没有拖泥带水之感。无论是寂静场景还是旋风画面,都能营建出明晰、饱满、详尽而有深度的音效。

影像方面,使用爱普生投影机搭配120英寸的4K高清增益透声幕,印象绘声绘色,画面表现通透自然。KTV器材使用了MASU,其声色特点为高音甜、中音准、低声劲,可让演唱轻松自如,增加演唱自傲和喜好。从主观评价上来说就是耐听,站在任何位置,都能欣赏到实在的歌声。

该项目属于中小型影院,有着自身的声学规划难点。为了防止小空间简单引起的驻波,震颤回声、声染色等缺点(声音某些频率成分被大大加强,然后导致原有音色的失真或发生染色效应),规划师在室内声学规划阶段对规划方案和材料选择进行了有意识的调整,主要合理安置室内不同吸声特性的装饰材料。

对于吸音的处理,采用在空间内部添加扩散体的做法,利用对墙面的改造,使房间减震模式均匀分布从而完成平滑的低频呼应,改进室内声场。其次是考虑到影音室的隔音问题,对空间围护墙体和楼板等进行隔声规划,以确保房间有较低背景噪声的基本设置。隔音处理的别的一个目的,就是避免室内的声音对外界的影响。最后在音箱处理上,参照录音室的高标准,让其完成嵌入式处理,与墙面形成一个平面。
业主体会往后非常满意,他表示自己仿佛置身于影片的故事情节之中,人物对比、布景音乐等声音非常鲜活,在三维空间里营造出的真实感,使他有了更深层次的观影体会。

设计与调试者心得


家庭影院的规划与布局,触及到了许多专业知识,不单是声学层面,还有规划层面、装饰知识以及对材料的掌握等。针对顾客需求和城市改变,规划团队也逐步从大空间目光转移到中小型空间的规划上。由于这样可以愈加接地气,一起也让私人影院能进入到千家万户。

整体风格与效果


根据业主的设计要求,多功能影音室的风格做到了简约、淡雅,没有过分富丽的外表装饰作用,却带给人一种舒服、天然之感。然而,装饰仅仅外观上的美感,影院真实需要的始终是内涵,专业的声场设计和器材调试/定位,才是私人影院灵魂所在。


登录后才能回复

快速回复